Vanaf maart 2025 is dit het hart van onze jachthaven, ons nieuwe clubschip (ark) de Lis.
Een modern, duurzaam en veilig onderkomen voor alle leden, passanten, gasten en de havenmeesters.

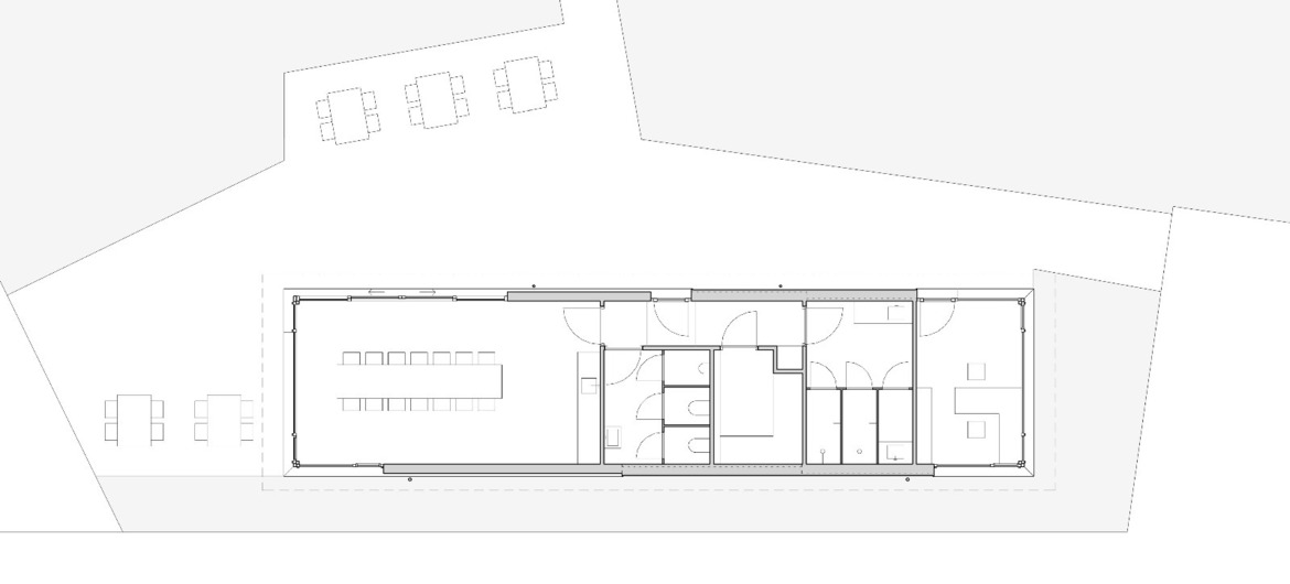
Ons nieuwe onderkomen is ontworpen door Studio Larkemika en is gebouw door ABC Waterwoningen uit Urk.
De Lis voorziet in een havenkantoor, vanwaar wij ook de havenbrug bedienen, twee nette schone sanitaire ruimtes met douches en toiletten en een ruime verenigingsruimte met moderne keuken en een schuifpui die later dit jaar toegang zal bieden tot een groot terras.
Via de linkjes op deze pagina kunt u met foto's en fimpjes de ontwikkelingen van de bouw van ons nieuwe clubschip terugkijken.
...
Video nieuwe Lis begin oktober
Video nieuwe Lis begin november
Ontwerp : Studio Larkemika
Bouwer : ABC Waterwoningen